Добро пожаловать на http://vipplan.ru

Випплан Иваново - это тысячи проектов домов в нашем каталоге!

Вы всегда сможете найти для себя проект дома вашей мечты! Даже если этого не случилось, мы готовы в любую минуту предложить проект индивидуального дома.

Забыли пароль?
Вы еще не регистрировались?

Перейдите по ссылке ниже на страницу регистрации.

Регистрация...

Внимание!!!

В проектную документацию могут быть внесены изменения любой сложности, в соответствии в Вашими пожеланиями!

Полезные статьи

Проект дома

Строительство дома начинается с подготовительного этапа, основной частью которого является проект. Разработка дизайнерского проекта сопровождается оформлением документов после выбора участка....

Инженерный раздел архитектурно-строительного проекта

Понятие «комфортный, теплый и уютный дом» включает в себя грамотно рассчитанные и проведенные инженерные сети. Наша компания, имея большой опыт, возьмет на себя весь комплекс мероприятий по проектированию вашего дома, связанные с планировкой, выбором материалов и устройством инженерных систем (инженерный раздел проекта дома: электрика, отопление, водоснабжение и канализация)...

Проекты домов и коттеджей > Каталог проектов домов > Проект одноэтажного дома на склоне Vg2239

Проект одноэтажного дома на склоне Vg2239

Проект одноэтажного дома на склоне
Зарегистрируйтесь

Проект № Vg2239


Техническое описание
Общая площадь: 132 м2
Жилая площадь: 73.61 м2
Высота здания: 7.05 м
Размеры дома: 16.04м×14.24м
Кол-во комнат: 4
Цокольный этаж: нет
Гараж: нет
Мансарда: нет

Kонструкция
Фундамент: ленточный монолитный
Перекрытия: Деревянные балки
Материал стен: Бетонные блоки

Архитектурный раздел
Конструктивный раздел
АР+КР - 52 000 (Со скидкой 20%)
Проект индивидуального одноэтажного жилого дома с размерами здания 16,04 x 14,24 м. Фундамент – ленточный монолитный. Наружные стены – арболитовые блоки. Внутренние стены – арболитовые блоки. Перегородки – каркасные с ГКЛ на металлическом каркасе. Пол 1 этажа – пол по деревянным и металлическим балкам. Чердачные перекрытия – деревянные балки перекрытия. Перемычки: монолитные ж/б. Крыша –многоскатная. Кровля –металлочерепица. Окна – металлопластиковые. Лестница – по индивидуальному заказу.
Генплан застройки участка / Паспорт проекта 7000 руб / 10000 руб
Инженерный раздел (полный) 66000 руб
Смета на строительство 33000 руб
Теплотехнический расчет материалов стен Бесплатно
Стоимость проекта со незначительнми изменениями 61700 руб
Стоимость проекта со средними изменениями* 71600 руб
Стоимость проекта со значительными изменениями** 74200 руб

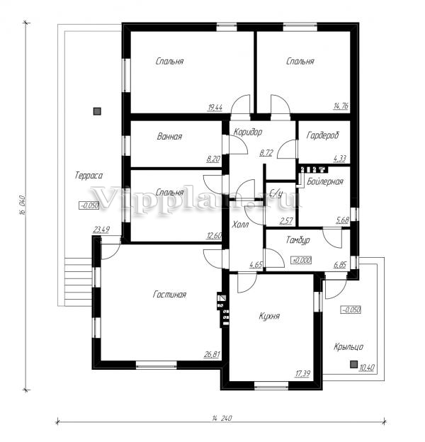
План первого этажа


Тамбур — 6,85 кв м
Холл — 4,65 кв м
Коридор — 8,72 кв м
Кухня — 17,39 кв м
Гостиная — 26,81 кв м
Спальня — 12,60 кв м
Ванная — 8,20 кв м
Спальня — 19,44 кв м
Спальня — 14,76 кв м
Гардероб — 4,33 кв м
Бойлерная — 4,33 кв м
С/у — 2,57 кв м
Проект одноэтажного дома на склоне Проект одноэтажного дома на склоне Проект одноэтажного дома на склоне Проект одноэтажного дома на склоне
Внесение изменений и привязка к участку строительства

В любой из проектов от компании VIPplan - Иваново по вашему желанию могут быть внесены изменения в материалы стен, материалы наружной отделки дома, а также будет произведена адаптация проекта под конкретный регион строительства (с учетом грунтов региона, геологических особенностей вашего участка и местных климатических условий) - БЕСПЛАТНО !!! (кроме проектов со скидкой и проектов наших партнеров).

Любой из проектов, размещенных на сайте ivanovo.vipplan.ru мы можем выполнить из требуемых вам строительных материалов: ячеистый бетон (газобетон, пеноблок), керамоблок, кирпич, шлакоблок, бетонный блок, дерево (брус, клееный брус), каркасная технология (деревянный каркас, металлокаркас (ЛСТК)).

Фасад дома и его наружную отделку так же возможно выполнить с применением различных облицовочных материалов: структурной штукатурки, (с утеплителем и без), сайдингом (пластиковый или металлосайдинг), фиброплитами, кирпича.

 
6 Избранные
проекты

Доставка проектов по России: Москва (Московская область), Санкт-Петербург (Ленинградская область), Краснодар, Ростов-на-Дону, Ставрополь, Сочи, Волгоград, Новосибирск, Белгород, Брянск, Воронеж, Саратов, Хабаровск, Астрахань, Нальчик, Владикавказ, Екатеринбург, Тюмень, Самара, Нижний Новгород, Казань, Пермь, Уфа, Челябинск, Красноярск, Ханты-Мансийск, Иркутск, Курган, Оренбург, Омск, Томск, Барнаул, Новокузнецк, Кемерово, Абакан, Чита, Якутск, Южно-Сахалинск, Петропавловск-Камчатский и страны ближнего зарубежья: Белоруссия, Украина, Казахстан